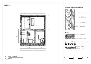
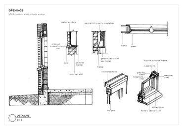
a collection of hand-drawn construction details
a series of drawings focusing on the fundamentals of construction technology, environmental design, and building materials that cohesively contribute to a successful small-scale structure dwelling.









We use cookies to analyze website traffic and optimize your website experience. By accepting our use of cookies, your data will be aggregated with all other user data.